PLANWERK Architekten
Startseite
Projekte
Neubau Wohnen
Bauen im Bestand
Gewerbe & Industrie
Jugend, Schule, Sport
Wettbewerbe & Ideen
Und sonst
Impressionen
In Arbeit
Büro
Team
Leistungen
Kontakt
Projekte
Jugend, Schule, Sport
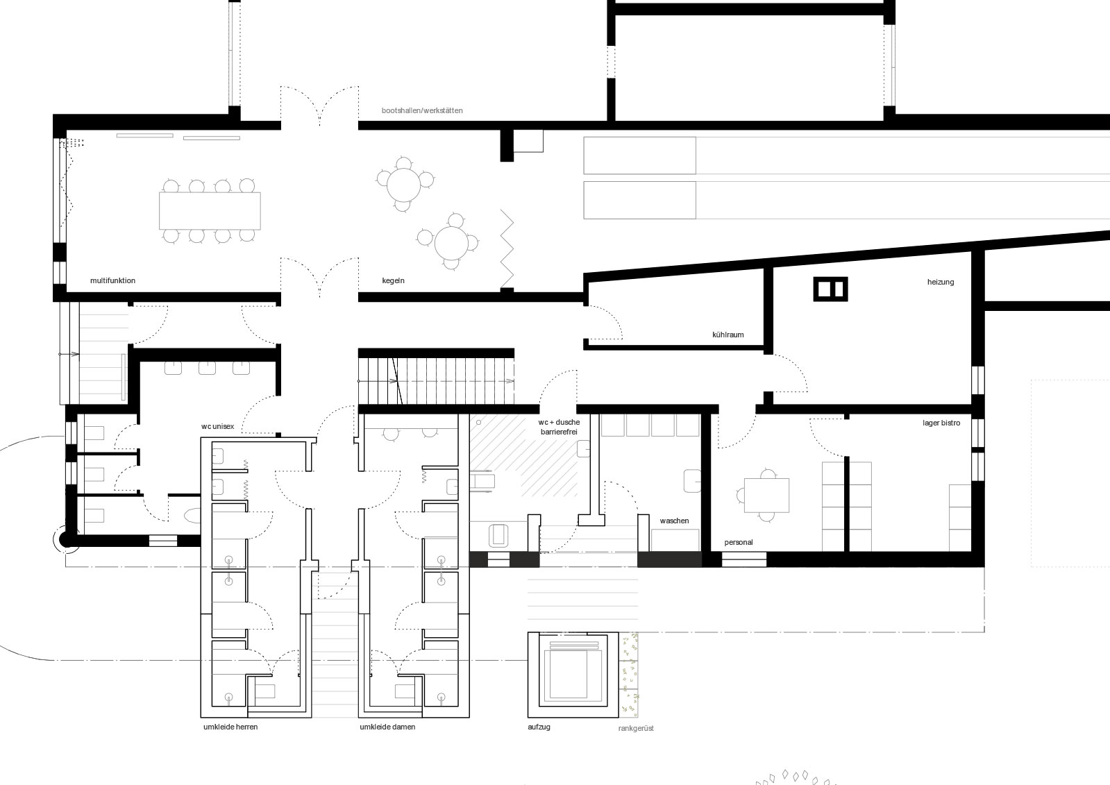
Yachtclub Wesel
Projektbeschreibung
Unser Vorschlag zur Untersuchung der Sanierungs- und Barriere-reduzierenden Umbaumaßnahmen für Clubhaus und Gastronomie des Yacht Club Wesel. Die Maßnahmen zur Modernisierung und Umgestaltung sollen bei laufendem Betrieb erfolgen.
‹ zurück | Projekte Jugend, Schule, Sport